Home / Products & Cases / Details
Lattice Gantry Crane
Authentication mark:
The following options can be selected:
Lifting capacity:
- 20t
- 30t
- 50t
- 70t
- 90t
Lifting height:
Span:
Voltage/Hertz:
Job level:
- A5
- A6
- A7
- A8
Sling available:
-
Lifting hook
Apply:
This lattice gantry crane is an ideal lifting equipment employed in the warehouse, freight yard, terminals and other places.
- Product Overview
- Application Scenario
- Certificate
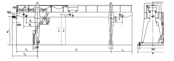
The lattice gantry crane is designed with a unique latticed structure. This structure features a notably small windward area, which not only reduces the impact of wind forces during operation but also contributes to its relatively light weight. Despite its light build, it exhibits excellent lifting ability, capable of handling various heavy loads with ease. These characteristics make it stand out among lifting equipment.
This particular lattice gantry crane has been proven to be an ideal choice for applications in numerous settings. In warehouses, it efficiently maneuvers to lift and transport stored goods, optimizing the space utilization and workflow. At freight yards, it plays a crucial role in loading and unloading goods from trucks and trains, ensuring smooth logistics operations. In terminals, whether it's a port terminal or a container terminal, this crane can handle large containers and cargo with precision.
Regarding the traveling mechanism of the crane, there are two distinct ways: separated drive and drive brake. The separated drive system allows for more flexible movement and better control during operation, while the drive brake system ensures safe and stable stops when needed.










