location
Home / Products / Low Headroom Single Girder Overhead Crane
Low Headroom Single Girder Overhead Crane
图像 69.webp
图像 70.webp
图像 72.webp
图像 69.webp
图像 70.webp
图像 72.webp
Authentication mark:
CCC
CE
LDC electric single-girder crane is applicable to the places where the workshop is low and the requirement of lifting height is high.
Capacity:
1-32.5 t
Lifting Height:
7.5 m, 10 m, 15m, 25 m, customized
Span:
7.5-30 m
Voltage/Hertz:
3 Phase 380V 50hz
Working Class:
A3-A4
Get A Free Quote
Introduction
Application Scenario
Advantages
Structural Diagram And Parameter Table
Introduction
Low Headroom Single Girder Overhead Crane is a professional lifting equipment, mainly used for hoisting, moving and positioning operations in limited height spaces. It adopts a single girder structure, combined with a compact design, which can be flexibly installed in places with low indoor height. It is equipped with high-performance hoisting components and precise control system, which can stably complete the handling of goods of different weights, effectively reducing manual labor intensity and improving work efficiency, providing reliable support for industrial production.
Application Scenario
The application scenarios of Low Headroom Single Girder Overhead Crane are mainly concentrated in places with limited indoor height. It is widely used in small and medium-sized factories, workshops, warehouses and logistics centers. In workshops with low height, it can flexibly complete the hoisting and moving of workpieces, raw materials and finished products. In warehouses, it is used to load, unload and stack goods, improving the efficiency of goods turnover. It is also suitable for small-scale heavy-load handling scenarios such as small mechanical equipment installation and maintenance, matching the actual operation needs of various limited-height spaces.
Advantages
The core advantages of Low Headroom Single Girder Overhead Crane lie in its compact structure, strong adaptability and high practicality. It adopts a single girder design, which is small in size and occupies little space, making it suitable for use in places with low height, solving the problem of difficult lifting in limited height spaces. It has stable load-bearing performance, can stably complete the hoisting of medium and light loads, and ensure the safety and stability of operation. The operation is simple and easy to master, and the control system is precise, which can realize accurate positioning and improve work efficiency. It is easy to install and maintain, with low failure rate and low use cost, and can be adjusted according to actual operation needs, adapting to different working environments and operation requirements.
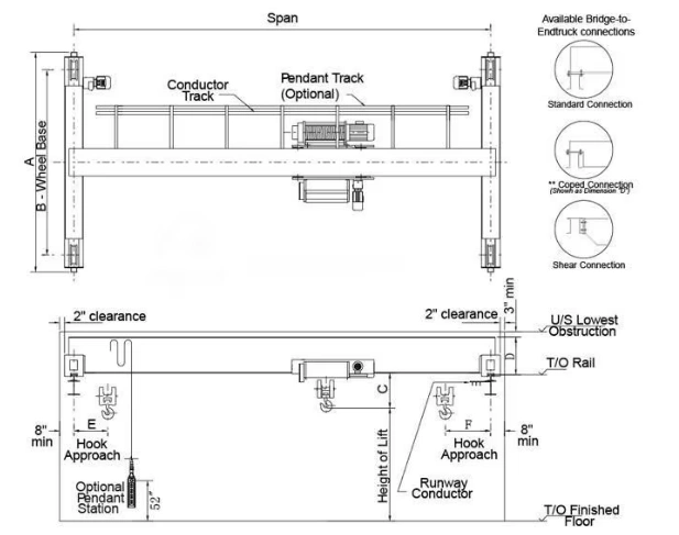
Structural Diagram And Parameter Table
diagram
parameter
CORE ADVANTAGES
1
HIGH QUALITY & STABLE PERFORMANCE
Built with premium materials and strict quality control, ensuring smooth and consistent operation even under heavy working conditions.
2
LONG SERVICE LIFE & LOW MAINTENANCE
Durable structural design reduces wear and tear, delivering long service life with minimal maintenance requirements.
3
HIGH EFFICIENCY & ENERGY SAVING
Optimized driving system ensures fast, responsive lifting while lowering energy consumption and operating costs.
4
HIGH SAFETY STANDARD & DURABLE STRUCTURE
Equipped with multiple safety devices and a rugged structure, providing reliable protection and long‑term durability.
5
CUSTOM DESIGN & FLEXIBLE SOLUTIONS
Fully customizable to different tonnages and working conditions, offering flexible lifting solutions for shipyards and marinas.
QUALIFICATION
product
product
product
product
product
product
product
product